Skip to main content

Permit-Ready Plans Built to Build

Professional construction documents from a designer who's spent 20+ years on the building side

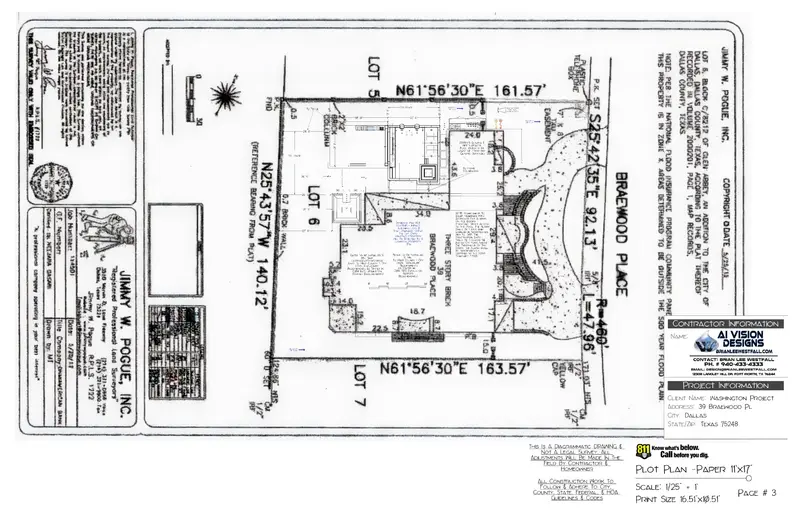
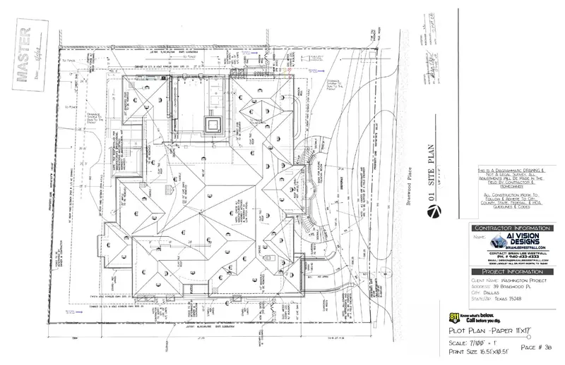
Dallas — Washington Project

39 Braewood Place, Dallas TX · 11-Sheet Permit & HOA Package

Full Hi-Definition plan sets available on request. Web images shown at reduced resolution for faster browsing.

01

Dallas — Build Progress

From breaking ground through Phase 5 — follow the Dallas Project as the design comes to life. A luxury pool and outdoor living space taking shape through every stage of construction.

Design to Build · Construction Progress

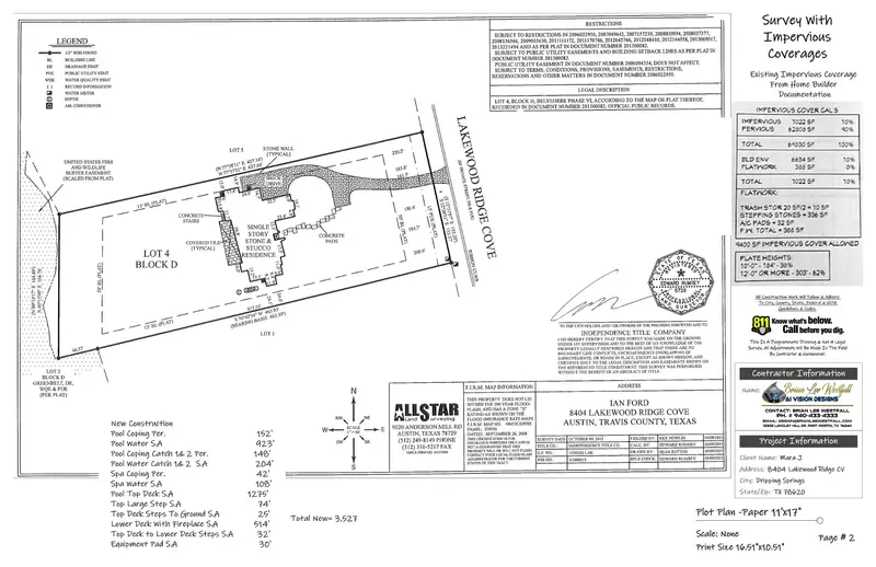
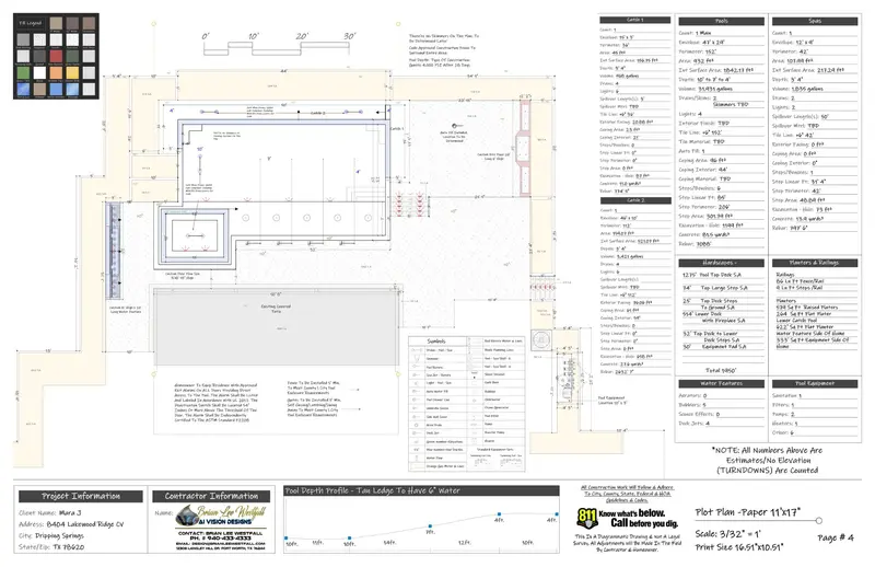
Austin — Dripping Springs

8404 Lakewood Ridge Cove, Dripping Springs TX · 8-Sheet Permit Package

Full Hi-Definition plan sets available on request. Web images shown at reduced resolution for faster browsing.

02

Austin — Build Progress

Watch the complete build process from dig to finished landscape on this luxury hillside pool project in Dripping Springs, Texas. Featuring infinity edge pool with glass tile, tiered Corten steel retaining walls, custom fire features, and LED landscape lighting.

Design to Build · Construction Progress

Get Professional Construction Plans

Whether you need a complete permit package or HOA submittal materials — plans built by someone who's been on the job site.